0 db





Közterületi játékok - Classic Fém + HDPE műanyag

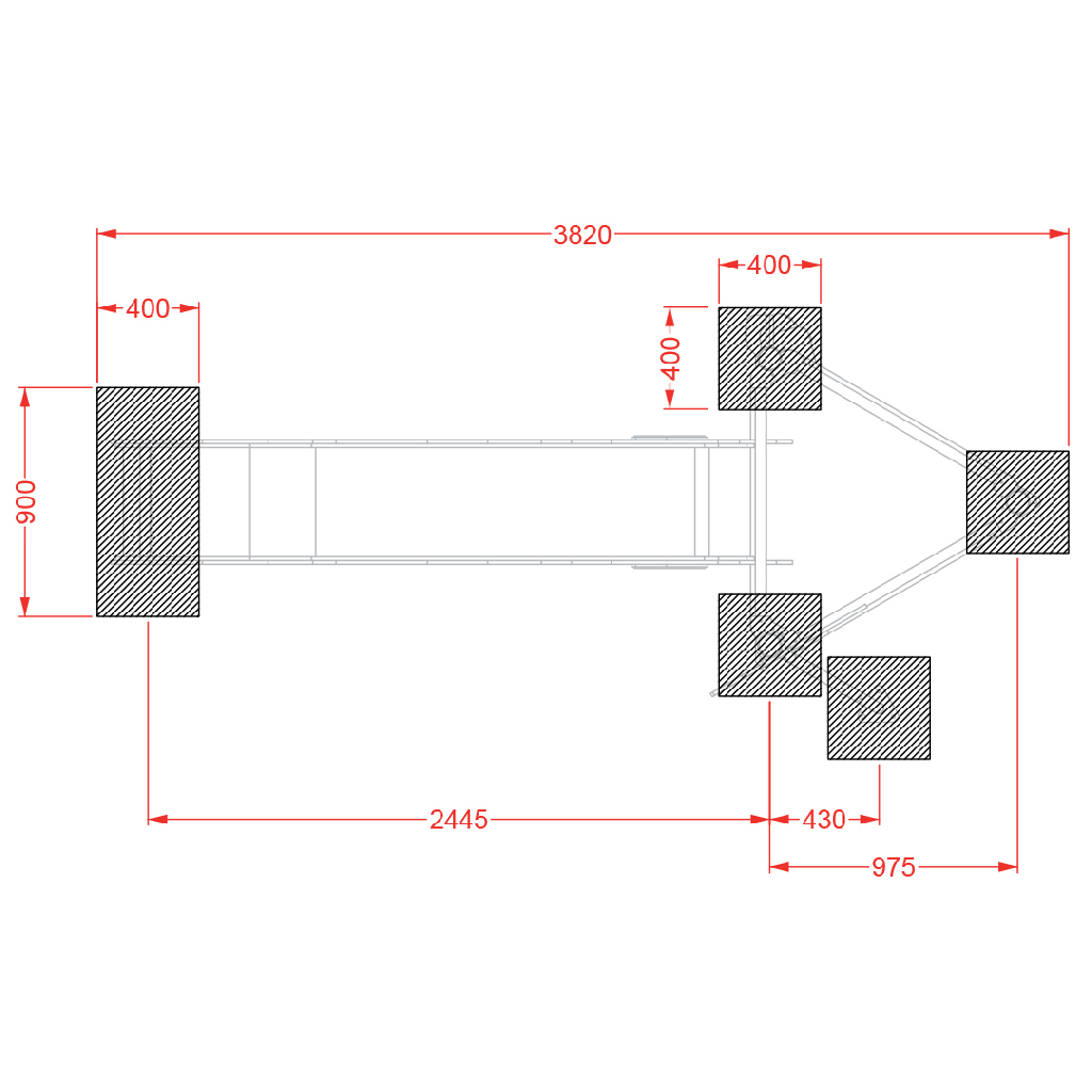
Vissza a találati listára Fém torony dinó csúszdával
Fém torony dinó csúszdával Fém torony dinó csúszdával Fém torony dinó csúszdával

Termékcsalád: Mosser

Fém torony dinó csúszdával

Ár: 1.195.000Ft-tól

Cikkszám: MOSSER-PAN-001

 adatlap

Forgalmazott termékeink
Adatlapja (PDF) formátumban
megtekinthető és letölthető.

Óvodás
Gyerekeknek

Iskolás
Gyerekeknek




Garancia
Garancia: 3év
Kapacitás
Kapacitás: 3fő
Fém
Fém: Igen
Műanyag
Műanyag: Igen
Esési terület
Esési terület: 30 m2
Esési magasság
Esési magasság: 130 cm
Terület
Terület: 5 x 6m2
Ütés csillapitó: van
Ütés csillapitó: van

Játék ismertető

Termék családunk alap pillére a vizualitás . Szerettünk volna egy olyan termék családot létre hozni mely elsőre mosolyt csal leendő megrednvlőeink arcára.
Vidám színek, vidám motívumok = vidám elégedett megrendelők.
Játékaink hosszú élettartamát a porfestett és rozsdamentes fém ötvözve a HDPE UV ÁLLÓ műanyag kombinációja garantálja!